Espace propriétaire
fr

Votre recherche

Nouveauté
Bédarieux (34600)

4 pièces - 79 m²

Maison de village en cours de rénovation 79 m2 et sa cave de 35 m2 face à l'Orb

50 000 €
Ref : CDL-Bédarieux
A propos de ce bien
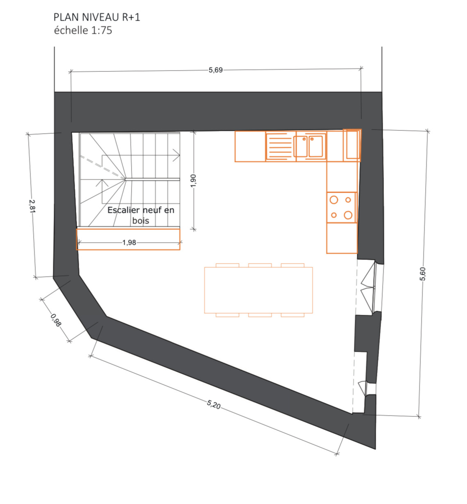
Caroll de l’agence BEAUFILS immobilier & patrimoine a le plaisir de vous proposer la commercialisation une maison de ville de 79 m2 sur 4 niveaux + une cave de 35 m2 sur la commune de Bédarieux, petite particularité elle est commercialisée en plateau c’est à dire partiellement rénovée et elle sera officiellement disponible mi 2025 et il va vous rester quelques travaux à votre charge. La parcelle numéro 454 au 27 quai Roosevelt à Bédarieux est composée d’un immeuble avec un R-1 (cave) et trois étages à destination de la création d’un seul logement type maison de ville. Cette maison est donc sur 4 niveaux, un rez-de-chaussée de 18 m2 et 3 autres étages de 20 m2. Libre à vous de l’aménager selon votre goût…. Avis aux bricoleurs, aux artisans, aux investisseurs… vous allez pouvoir façonner votre ce logement de À à Z !!!! Les prestations à votre charge seront les menuiseries intérieures, cloisons / doublages, plafonds, revêtement de sols, peinture, électricité / courant faibles, plomberie / génie climatique et la cuisine et la salle d'eau... pour environ 50 000 euros de travaux à votre charge pour un logement clé en main. L'aménageur se charge de rénover structurellement ce bien dans son intégralité et de ravaler la façade, mais également le raccordement des eaux usées, le raccordement à l'eau potable, le raccordement à l'électricité, l'isolation de la façade sur rue (les autres sont déjà isolées par l’extérieur ou mitoyenne) + placo sur ce même mur (non jointé pour permettre l’aménagement futur) et la chape de finition au RDC. Des photos complémentaires et des dossiers techniques (notice technique décrivant les travaux à la charge de l’aménageur et ceux restant à votre charge) sont à votre disposition sur demande par mail ou par téléphone, ou sur mon instagram : @carolldewezleroy Pour un échange téléphonique ou tout autre renseignement, Caroll 06 ,;, 63,;, 60,;, 77,;, 96. - carollimmobilier@gmail.com - 829 224 617 R.S.A.C Montpellier Le chantier vient de se terminer début novembre, des visites sont possibles sur demande en semaine et le week end. Bédarieux est située dans le Sud de la France, dans la région Occitanie à l'ouest du département de l'Hérault, dans le Parc Naturel Régional du Haut Languedoc. Dans un écrin de nature, cette petite ville de 6000 habitants fait figure de centre urbain. Un carrefour économique et touristique, un centre-ville animé et dynamique incontournable pour une population d'un territoire de plus de 22 000 habitants qui correspond à la grande Communauté de communes Grand Orb créée en 2014. De nombreux commerces et services, son pôle santé et ses nombreuses activités en pleine nature sa vie associative riche et une industrie aux savoir-faire uniques font de Bédarieux une ville rayonnante et attractive. Consciente de la richesse de son patrimoine naturel, Bédarieux est entrée dans une démarche Agenda 21 qui place le développement durable et la qualité de vie au coeur de ses projets. Bédarieux est une ville d'art et de culture ouverte sur la beauté du monde, une ville où l'action culturelle a été le moteur de la modernisation et du développement de la cité. La culture méditerranéenne y est prégnante et des liens étroits sont nés de la coopération avec les pays du Sud. Bédarieux est une ancienne cité minière et industrielle. La ville a connu au cours de son histoire un fort développement démographique durant toute la première moitié du siècle dernier. Au cours de cette période prospère, l'habitat s'est fortement développé donnant naissance à des îlots d'habitations très denses. Avec la fermeture des mines et de nombreuses usines dans les années 50 et 60, le nombre d'habitants n'a ensuite cessé de décroître. Depuis 30 ans, la municipalité a mis en place une série d'actions pour moderniser et redynamiser la ville (services, renouvellement urbain, équipements, vie culturelle et associative, habitat). Son action pour la rénovation des quartiers est souvent citée en exemple. France - 34 - Occitanie - Hérault - occupation - maison - centre ville - autoroute - A75 - urbain - commodités - supermarché - Invest - investissement locatif - Clermont l’hérault - Gignac - Salasc - rénovation - vente - résidence principale - travaux - DPE - balade - randonnée - rivière - UNESCO - Soumont - Soubès - le Bosc - Octon - Liausson - Mourèze - Nébian - Lacoste - patrimoine - rénovation - cuisine - lac du salagou
Descriptif de ce bien
Général
Code postal 34600
Nombre de chambre(s) 3
Nombre de pièces 4
Nombre de niveaux 4
Financier
Prix de vente 50 000 €
Les honoraires d'agence seront intégralement à la charge du vendeur  
Energie
DPE GES
Autour du bien
  • Commerces et santé
  • Loisirs
  • Ecoles
  • Transports
  • Pratique
Contacter pour ce bien
L'agence
Téléphone 06 02 17 22 40
Adresse
658 enclos des jasmins Carnon Plage 34130 Mauguio

* Champ obligatoire

Les informations recueillies sur ce formulaire sont enregistrées dans un fichier informatisé par La Boite Immo agissant comme Sous-traitant du traitement pour la gestion de la clientèle/prospects de l'Agence / du Réseau qui reste Responsable du Traitement de vos Données personnelles. La base légale du traitement repose sur l'intérêt légitime de l'Agence / du Réseau. Elles sont conservées jusqu'à demande de suppression et sont destinées à l'Agence / au Réseau. Conformément à la loi « informatique et libertés », vous disposez des droits d’accès, de rectification, d’effacement, d’opposition, de limitation et de portabilité de vos données. Vous pouvez retirer votre consentement à tout moment en contactant directement l’Agence / Le Réseau. Consultez le site https://cnil.fr/fr pour plus d’informations sur vos droits. Si vous estimez, après avoir contacté l'Agence / le Réseau, que vos droits « Informatique et Libertés » ne sont pas respectés, vous pouvez adresser une réclamation à la CNIL. Nous vous informons de l’existence de la liste d'opposition au démarchage téléphonique « Bloctel », sur laquelle vous pouvez vous inscrire ici : https://www.bloctel.gouv.fr Dans le cadre de la protection des Données personnelles, nous vous invitons à ne pas inscrire de Données sensibles dans le champ de saisie libre.
Ce site est protégé par reCAPTCHA, les Politiques de Confidentialité et les Conditions d'Utilisation de Google s'appliquent.

Découvrir nos outils