Espace propriétaire
fr

Votre recherche

Nouveauté
Lodève (34700)

3 pièces - 60 m²

Appartement 3 pièces 62 m2 avec terrasse - immeuble rénové avec ascenseur

102 657 €
Ref : CDL lot 2
A propos de ce bien

Lodève Ilot Fleury lot 2 de 62,98 m2 et sa terrasse de 7,39 m2. Caroll de l’agence BEAUFILS immobilier & patrimoine a le plaisir de vous proposer la commercialisation de plusieurs appartements rénovés, à Lodève en plein centre-ville / cœur de ville mais attention petite particularité, ce dispositif est sous condition de ressource pour permettre l’accession à la propriété pour tous.

Je m’explique, afin de pouvoir acquérir l’un des appartements proposés ci-dessous, il vous sera demandé de répondre aux critères d’éligibilité, à savoir si vos revenus N-1 (revenu fiscal de référence indiqué sur votre relevé d’impôts de l’année précédente) / (voir revenu fiscal de votre dernier avis d’imposition) ne dépasse pas le seuil imposé par le dispositif ANAH 2024 soit :

Nombre de personnes composant le ménage :

1 personne = 22 015 euros

2 personnes = 32 197 euros

3 personnes = 38 719 euros

4 personnes = 45 234 euros

5 personnes = 51 775 euros

Par personne supplémentaire = 6 525 euros

Si vous respectez ces conditions de ressources je vous invite à lire la suite de cette annonce.

Insufflé dans le cadre d’une opération de revitalisation du centre ancien, l’ilot Fleury, qui est l’ancienne boulangerie Sancho, va bientôt être composé de 9 logements (appartements) rénovés pour s’adapter à nos modes de vie d’aujourd’hui et pour être aux normes énergétiques (confort thermique). C’est le principe de poser ses valises dans un appartement refait du sol au plafond, avec le cachet de l’ancien, dans un immeuble typique des bâtiments dans le centre ancien de Lodève !

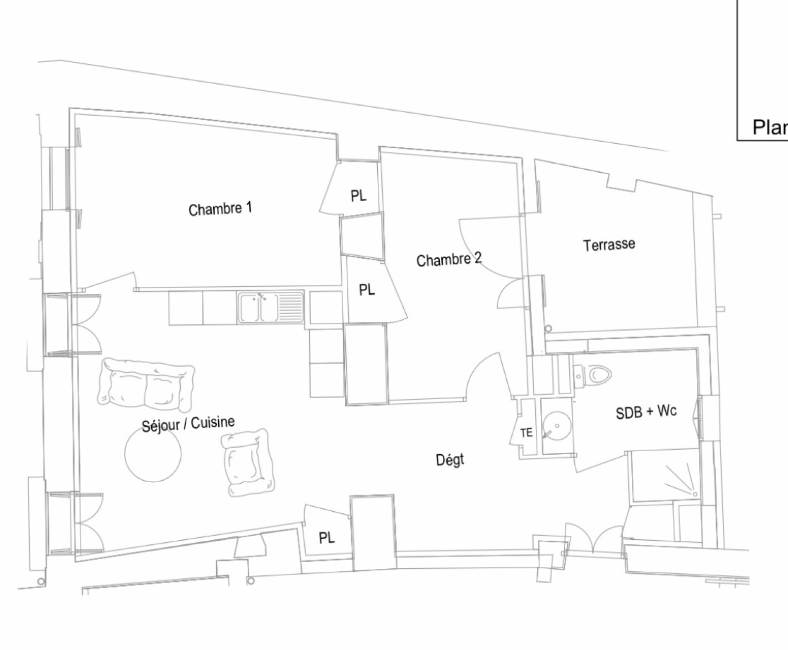
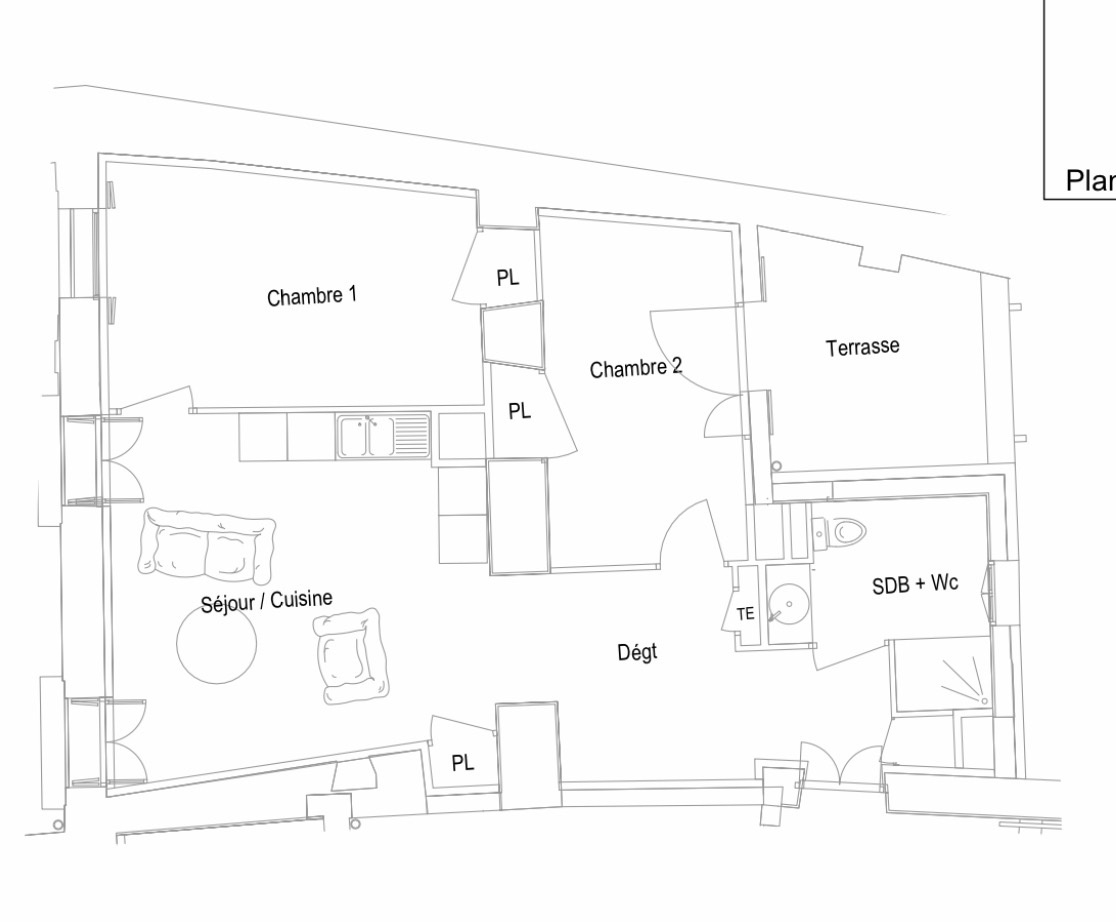
Objet de cette annonce, la vente du lot numéro 2 Détail du lot 2 = 62,98 m2 et sa terrasse de 7,50 m2, au premier étage de la résidence, au prix de 102 657 euros

Le logement sera rénové pour février 2027 !

Informations diverses : Au sous-sol se trouvera un local technique commun – buanderie commune, qui va pouvoir accueillir votre machine à laver si vous le souhaitez, le but est d’optimiser les lieux pour le confort des habitants et gagner de l’espace dans son logement, Copropriété à échelle humaine – 9 appartements, c’est un peu le principe de vivre dans un lieu agréable, au cœur de ville, à coté de toutes les commodités en connaissant ses voisins, Au RDC un local vélo commun, L’immeuble sera équipé d’un ascenseur, parfait pour une accessibilité optimale, ce qui est assez rare dans l’ancien, La commune de Lodève est située dans le département de l'Hérault, en région Occitanie. Elle fait partie de la Communauté de communes du Lodévois et Larzac. A seulement 30 minutes de Montpellier, par l’autoroute A75 (autoroute gratuite), elle offre une qualité de vie nichée dans un environnement agréable, cirque de Navacelle, Lac du Salagou à proximité. Un environnement économique avec sa zone d’activité mais surtout son centre-ville dynamique, premier centre commercial du Lodèvois - Larzac. Elle ne manque pas également de culture avec une médiathèque, cinéma, festivals, sports, des écoles de la maternelle au lycée et se veut rassurante avec son pôle médical, son hôpital et sa clinique. Bref il fait bon vivre à Lodève.


Des photos complémentaires, des vidéos et des dossiers techniques sont à votre disposition sur demande par mail ou par téléphone, ou sur mon instagram : @carolldewezleroy Pour un échange téléphonique ou tout autre renseignement, Caroll 06 ,;, 63,;, 60,;, 77,;, 96. - carollimmobilier@gmail.com - 829 224 617 R.S.A.C Montpellier


France - 34 - Occitanie - Hérault - occupation - appartement - centre ville - autoroute - A75 - urbain - commodités - supermarché - Invest - investissement locatif - Clermont l’hérault - Gignac - rénovation - VIR - vente - résidence principale - pas de travaux - DPE - balade - randonnée - rivière - UNESCO - Soumont - Soubès - le Bosc - Octon - Liausson - Mourèze - Nébian - Lacoste - patrimoine

Descriptif de ce bien
Général
Code postal 34700
Nombre de chambre(s) 2
Nombre de pièces 3
Ascenseur OUI
Financier
Prix de vente 102 657 €
Les honoraires d'agence seront intégralement à la charge du vendeur  
Energie
DPE GES
Autour du bien
  • Commerces et santé
  • Loisirs
  • Ecoles
  • Transports
  • Pratique
Contacter pour ce bien
L'agence
Téléphone 06 02 17 22 40
Adresse
658 enclos des jasmins Carnon Plage 34130 Mauguio

* Champ obligatoire

Les informations recueillies sur ce formulaire sont enregistrées dans un fichier informatisé par La Boite Immo agissant comme Sous-traitant du traitement pour la gestion de la clientèle/prospects de l'Agence / du Réseau qui reste Responsable du Traitement de vos Données personnelles. La base légale du traitement repose sur l'intérêt légitime de l'Agence / du Réseau. Elles sont conservées jusqu'à demande de suppression et sont destinées à l'Agence / au Réseau. Conformément à la loi « informatique et libertés », vous disposez des droits d’accès, de rectification, d’effacement, d’opposition, de limitation et de portabilité de vos données. Vous pouvez retirer votre consentement à tout moment en contactant directement l’Agence / Le Réseau. Consultez le site https://cnil.fr/fr pour plus d’informations sur vos droits. Si vous estimez, après avoir contacté l'Agence / le Réseau, que vos droits « Informatique et Libertés » ne sont pas respectés, vous pouvez adresser une réclamation à la CNIL. Nous vous informons de l’existence de la liste d'opposition au démarchage téléphonique « Bloctel », sur laquelle vous pouvez vous inscrire ici : https://www.bloctel.gouv.fr Dans le cadre de la protection des Données personnelles, nous vous invitons à ne pas inscrire de Données sensibles dans le champ de saisie libre.
Ce site est protégé par reCAPTCHA, les Politiques de Confidentialité et les Conditions d'Utilisation de Google s'appliquent.

Découvrir nos outils